EUNSAT2025
with BGE

Lisbon, 1 to 3 September 2025

Technical Exposition

All companies or organizations interested in Unsaturated Soils, Characterization of Materials, Biotechnology applied to Geotechnical Engineering, and Geotechnical Engineering in general, are invited to sponsor this conference.

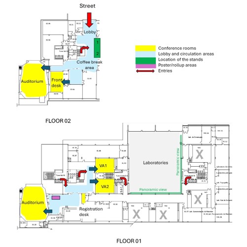
The Technical Exposition will take place (stand or roll-up) now on floor 02 of the congress center located at the building of Civil Engineering. 

The technical exposition is in the room reserved for the coffee breaks.

Please contact the organization if you wish reserve your place,

Options for Technical Exposition and Sponsorship   

Please contact the Organizing Committee for other specific sponsorship options.

Contact

info@eunsat2025.tecnico.ulisboa.pt
(+351) 21 8418422